Man opdager dårligt nok, at man er kørt ud af Hinnerup, før man står i Grundfør, og lige netop her er Ugens Bolig beliggende. Boligen præsenteres i samarbejde med danbolig Hinnerup.
I idylliske Grundfør venter denne indflytningsklare bolig på 69 m². Her får I to værelser, et lyst køkken og en hyggelig stue med brændeovn – potentiale for at skabe et køkken-alrum. Den skønne have er omkranset af hæk og byder på privatliv, drivhus og en overdækket terrasse. Beliggenheden kombinerer fredfyldt natur med nærhed til Hinnerup, hvor I finder indkøb og hverdagens nødvendigheder.
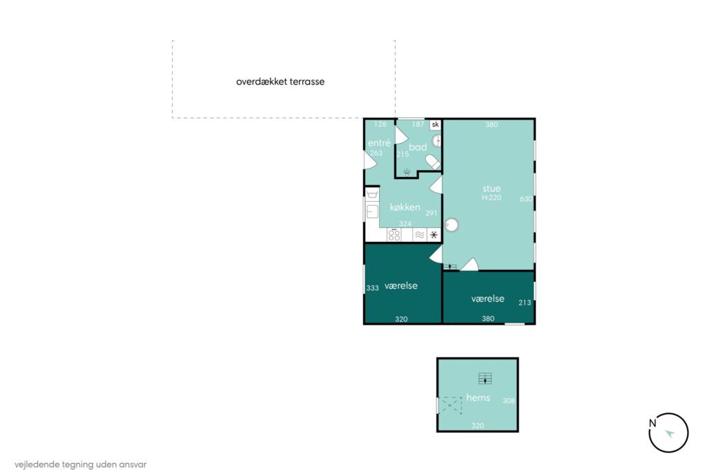
Velindrettede værelser og bonus hems
Boligens to værelser har en attraktiv størrelse med mange indretningsmuligheder – her kan I skabe soveværelse, børneværelse eller hjemmekontor. Hemsen er en skøn bonus, der kan bruges til opbevaring eller en ekstra soveplads. Med flot lysindfald fra vinduerne giver den en luftig og hyggelig atmosfære i boligen.


Potentiale for et åbent køkken-alrum
Det grå køkken byder på masser af skabsplads og funktionelle løsninger, mens stuen er hjemmets naturlige samlingspunkt med brændeovn, der skaber varme og hygge. Der er mulighed for at åbne op mellem køkken og stue for at skabe et moderne køkken-alrum, hvor I kan nyde et lyst og åbent opholdsmiljø med plads til både spisebord og sofahjørne.


Privat have med terrasse og drivhus
Haven er et fredeligt åndehul, omkranset af hæk, der sikrer privatliv. Plænen har en overskuelig størrelse og rummer også et drivhus, hvor I kan dyrke egne grøntsager. Den overdækkede terrasse fuldender uderummet og giver jer mulighed for at nyde udelivet året rundt – perfekt til afslapning eller hyggelige middage i det fri.
Kontakt danbolig Hinnerup for en fremvisning.
📞 86 98 65 66
Se flere billeder her: https://danbolig.dk/bolig/favrskov/8382/villa/3150000301-315/
Boligfakta
Type villa
Kontantpris 1.550.000 kr.
Ejerudgift 1.845 kr.
Boligareal 69 kvm
Rum 3
Energimærke E
















